18-4104 Hohiu St Mountain View, HI 96771
Listing Courtesy of: Hawaii Information Service / Better Homes And Gardens Real Estate Hank Correa Realty / Jonathan Correa - Contact:  8085572613

  18-4104 Hohiu St Mountain View, HI 96771

Active
$37,500 (USD)

Description

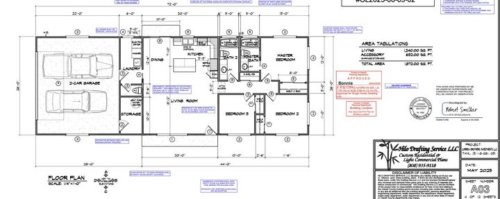
Rare opportunity to fast-track your new home build in up and coming PPMVM! This vacant lot at 18-4104 Hohiu St. comes with approved building plans for a thoughtfully designed 3-bedroom, 2.5-bathroom home with a 2-car garage.

Save valuable time and move forward with confidence—plans are already approved, helping you avoid the lengthy design and permitting process. The proposed layout offers modern functionality with an open-concept living area, primary suite, and convenient half bath for guests. The attached 2-car garage provides ample space for vehicles, storage, or workshop use.

Whether you're ready to build your primary residence, a second home, or an investment property, this is a prime opportunity to get started right away.

Information herein deemed reliable but not guaranteed. Buyer and Buyers Agent to do their own due diligence of all pertinent facts.

MLS #:
728451
Taxes
$200(2025)
Lot Size
9,132 SQFT
Type
Land
County
Hawaii County

Listed By

Jonathan Correa, Better Homes And Gardens Real Estate Hank Correa Realty, Contact: 8085572613
Source
Hawaii Information Service
Last checked Apr 18 2026 at 12:45 AM HST
Bathroom Details
Subdivision
  • Pacific Paradise Mountain View Manor
Lot Information
  • Wooded
  • Interior Lot
Property Features
  • Other (Remarks)
Utility Information
  • Utilities: Water Not Available, Electricity Available
  • Sewer: None
Land Tenure
  • Fee Simple
Additional Information: Hank Correa Realty | 8085572613
Location
   
Calculate drive times to this property
 
Powered by INRIX® Drive Time

Powered by Walk Score®

Estimated Monthly Mortgage Payment

*Based on Fixed Interest Rate withe a 30 year term, principal and interest only

Listing price
Down payment
%
Interest rate
%
Mortgage calculator estimates are provided by Better Homes and Gardens Real Estate LLC and are intended for information use only. Your payments may be higher or lower and all loans are subject to credit approval.
Disclaimer: Copyright 2026 Hawaii Information Service. All rights reserved. This information is deemed reliable, but not guaranteed. The information being provided is for consumers’ personal, non-commercial use and may not be used for any purpose other than to identify prospective properties consumers may be interested in purchasing. Data last updated 4/17/26 17:45